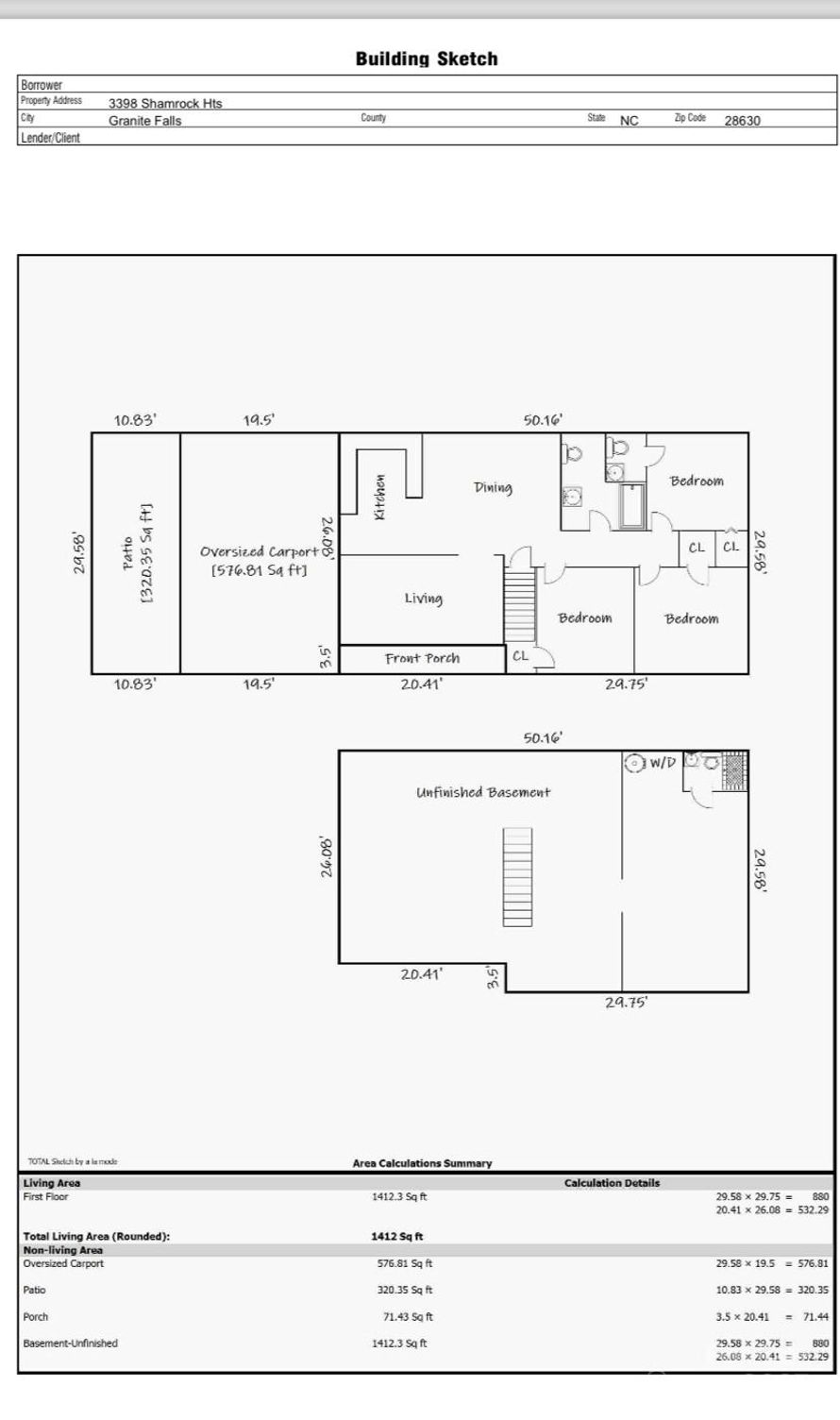
3398 Shamrock Hts, Hudson, NC 28638
$299,900
Not Currently Listed
3 beds
2 baths
1,412 sq ft
Built in
Purchase price
Down payment
Estimated rent
About this property
If you have ever ridden up Hwy 321 towards Granite Falls you may have noticed the "House on the Hill"! Located in the sweet little town of Hudson, NC, this brick ranch with a basement sits high atop Hwy 321 on the left. 3398 Shamrock Heights is a special find. House, barn and over two acres of...
Property type
Single family home
Price per square foot
$212
Lot size
106,286 sq ft
HOA fees
-
Neighborhood score
3 / 5
School score
5 / 10
Crime score
1 / 10
Be ready to buy

Better landlord insurance
Rent comps
Address | Status | Listed rent | Listed rent / sq ft | Distance | Bed | Bath | Sq ft | Year built |
|---|---|---|---|---|---|---|---|---|
Sale comps
Address | Status | Price | Price / sq ft | Distance | Bed | Bath | Sq ft | Year built |
|---|---|---|---|---|---|---|---|---|
