6114 Wyndham Way, Muncie, IN 47304
$600,000
Active
7 days ago
5 beds
3 baths
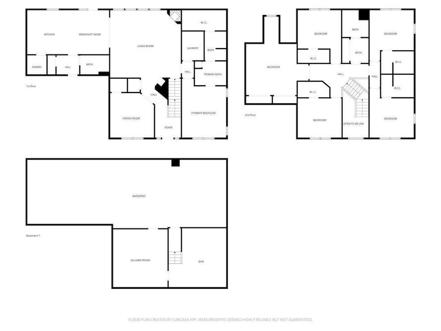
5,900 sq ft
Built in
Purchase price
Down payment
Estimated rent
About this property
Open House Sunday, 3-8 2:00-4:00 PM Located in one of the most sought-after sections of Carrington Woods Addition, this exceptional all-brick two-story home offers space, quality construction, and thoughtful updates throughout. Built in 2010 and situated on a rare double lot, the property features...
Days on market
8
Property type
Single family home
Price per square foot
$102
Lot size
20,960 sq ft
HOA fees
$33 monthly
Neighborhood score
4.5 / 5
School score
7 / 10
Crime score
1 / 10

Listed By: Steve Slavin, RB14045844, Coldwell Banker Real Estate Group
Source: MIBOR REALTORĀ® Association, #22086407, last updated on 3/6/2026
Powered by

Be ready to buy

Better landlord insurance
Rent comps
Address | Status | Listed rent | Listed rent / sq ft | Distance | Bed | Bath | Sq ft | Year built |
|---|---|---|---|---|---|---|---|---|
Sale comps
Address | Status | Price | Price / sq ft | Distance | Bed | Bath | Sq ft | Year built |
|---|---|---|---|---|---|---|---|---|

