7781 Tc Steele Vista Dr, Waveland, IN 47989
$679,000
Not Currently Listed
3 beds
4 baths
2,419 sq ft
Built in
Purchase price
Down payment
Estimated rent
About this property
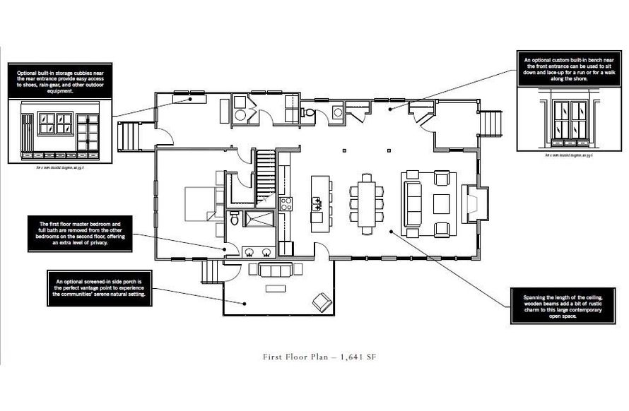
New construction at the Lakeside Village of Byron, a renowned development with luxury lakeside homes constructed in the modern farmhouse architectural style and modern features throughout. The "Bannister" model features nearly 2,500 sq. ft., 3 bedrooms, 3 1/2 bathrooms, large foyer gives way to an...
Property type
Single family home
Price per square foot
$281
Lot size
-
HOA fees
$305 monthly
Neighborhood score
4.5 / 5
School score
9 / 10
Crime score
1 / 10

Listed By: Eric Wolfe, RB14040059, Prime Real Estate ERA Powered
Source: MIBOR REALTORĀ® Association, #21638067, last updated on 2/17/2026
Be ready to buy

Better landlord insurance
Rent comps
Address | Status | Listed rent | Listed rent / sq ft | Distance | Bed | Bath | Sq ft | Year built |
|---|---|---|---|---|---|---|---|---|
Sale comps
Address | Status | Price | Price / sq ft | Distance | Bed | Bath | Sq ft | Year built |
|---|---|---|---|---|---|---|---|---|

