8251 SE Woodlawn Rd, Lawton, OK 73501
$355,000
Coming soon
3 days ago
2 beds
2 baths
1,800 sq ft
Built in
Purchase price
Down payment
Estimated rent
About this property
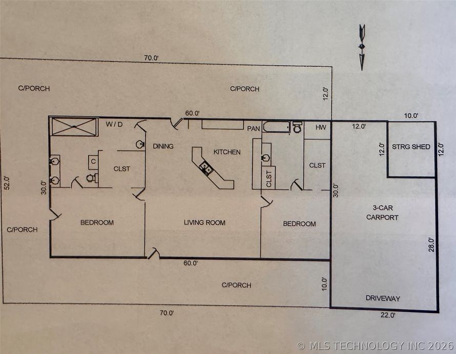
5 Acres — You’ll find plenty of space to relax and enjoy country living in this 1,800 sq ft, 2-bedroom, 2-bath home with an attached 2-car carport with storage. Inside, you’ll enjoy the open living, kitchen, and dining area that makes everyday living and family gatherings easy. The layout (see...
Days on market
3
Property type
Single family home
Price per square foot
$197
Lot size
-
HOA fees
-
Neighborhood score
3.5 / 5
School score
4.3 / 10
Crime score
1 / 10

Listed By: Tanya Daniels, 141809, Pebbles Real Estate
Source: MLS Technology Inc. (Tulsa), #2607708, last updated on 3/6/2026
Powered by

Be ready to buy

Better landlord insurance
Rent comps
Address | Status | Listed rent | Listed rent / sq ft | Distance | Bed | Bath | Sq ft | Year built |
|---|---|---|---|---|---|---|---|---|
Sale comps
Address | Status | Price | Price / sq ft | Distance | Bed | Bath | Sq ft | Year built |
|---|---|---|---|---|---|---|---|---|

