6024 Diamond Ln, South Fulton, GA 30213
$929,999
Under contract
805 days ago
4 beds
5 baths
3,956 sq ft
Built in
Purchase price
Down payment
Estimated rent
About this property
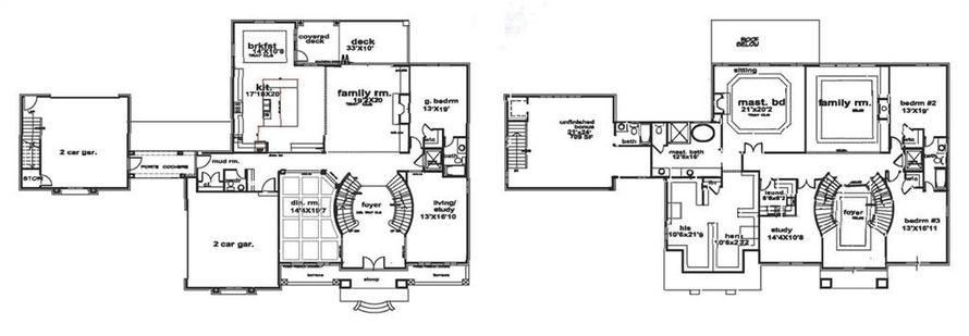
TO BE CONSTRUCTED - Introducing 6024 Diamond Lane, the SHERRICA Floor plan, an exquisite masterpiece nestled within the prestigious Isles De Versailles subdivision, this luxurious 4000+ square foot home is a masterpiece offering an open floor plan that seamlessly blends elegance and functionality....
Days on market
805
Property type
Single family home
Price per square foot
$235
Lot size
-
HOA fees
$250 monthly
Neighborhood score
3.5 / 5
School score
6.3 / 10
Crime score
1 / 10

Listed By: Mykah Richards, 353381, M. Lux Realty, LLC
Source: First Georgia MLS, #7318902, last updated on 2/10/2026
Powered by

Be ready to buy

Better landlord insurance
Rent comps
Address | Status | Listed rent | Listed rent / sq ft | Distance | Bed | Bath | Sq ft | Year built |
|---|---|---|---|---|---|---|---|---|
Sale comps
Address | Status | Price | Price / sq ft | Distance | Bed | Bath | Sq ft | Year built |
|---|---|---|---|---|---|---|---|---|


